Nhà gác lửng mái bằng 5x16m là giải pháp tối ưu cho nhà phố có diện tích hạn chế. Thiết kế gác lửng giúp mở rộng không gian sử dụng mà không cần xây thêm tầng, tạo cảm giác rộng rãi, thông thoáng. Với mặt tiền 5m, ngôi nhà vẫn đảm bảo tính thẩm mỹ, công năng đầy đủ và chi phí xây dựng hợp lý.
Ưu điểm khi xây dựng nhà gác lửng cho nhà phố nhỏ
Nhà gác lửng là giải pháp phù hợp cho những khu đất có diện tích hạn chế, đặc biệt là nhà phố. Thiết kế này giúp tận dụng không gian tối đa mà vẫn đảm bảo sự thông thoáng và tiện nghi. Dưới đây là một số ưu điểm cho nhà gác lửng:
Tăng diện tích sử dụng hiệu quả
- Gác lửng tạo thêm một tầng lửng giúp mở rộng không gian mà không cần xây thêm tầng.
- Khu vực này có thể dùng làm phòng ngủ, phòng làm việc hoặc khu vực sinh hoạt chung.
- Với nhà gác lửng mái bằng 5x16m, không gian được tối ưu mà vẫn đảm bảo sự thoải mái.
Tiết kiệm chi phí xây dựng
- So với việc xây nhà hai tầng, gác lửng giúp giảm bớt vật liệu và nhân công thi công.
- Mẫu nhà gác lửng 5x16m có thiết kế đơn giản, chi phí hoàn thiện thấp hơn so với nhà nhiều tầng.
- Không cần gia cố móng quá sâu, giúp giảm chi phí phần nền móng.
Tối ưu công năng sử dụng
- Gác lửng có thể linh hoạt làm nhiều chức năng: phòng ngủ, phòng thờ, phòng làm việc hoặc kho lưu trữ.
- Không gian bên dưới có thể dùng làm phòng khách, phòng bếp hoặc khu vực sinh hoạt chung.
- Với diện tích 5x16m, việc bố trí nội thất hợp lý giúp tận dụng tối đa không gian.
Cải thiện sự thông thoáng và ánh sáng
- Nhà gác lửng có trần cao, giúp không gian thoáng đãng hơn so với nhà cấp 4 thông thường.
- Sử dụng giếng trời, cửa kính lớn giúp đón ánh sáng tự nhiên và lưu thông không khí tốt hơn.
- Nhà gác lửng mái bằng 5x16m có thiết kế hiện đại, tận dụng ánh sáng giúp tiết kiệm điện năng.
Thi công nhanh chóng, ít tốn kém thời gian
- So với nhà hai tầng, nhà gác lửng có thời gian hoàn thiện nhanh hơn.
- Do kết cấu đơn giản, việc xây dựng và lắp đặt nội thất không mất nhiều thời gian.
- Phù hợp với những gia đình muốn hoàn thành nhà ở trong thời gian ngắn mà vẫn đảm bảo công năng sử dụng.
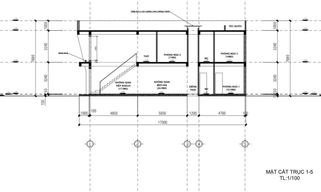
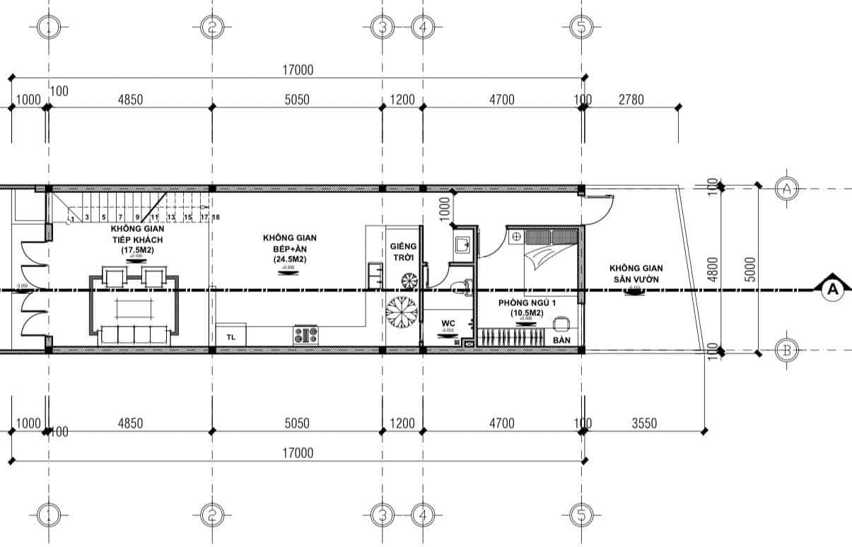
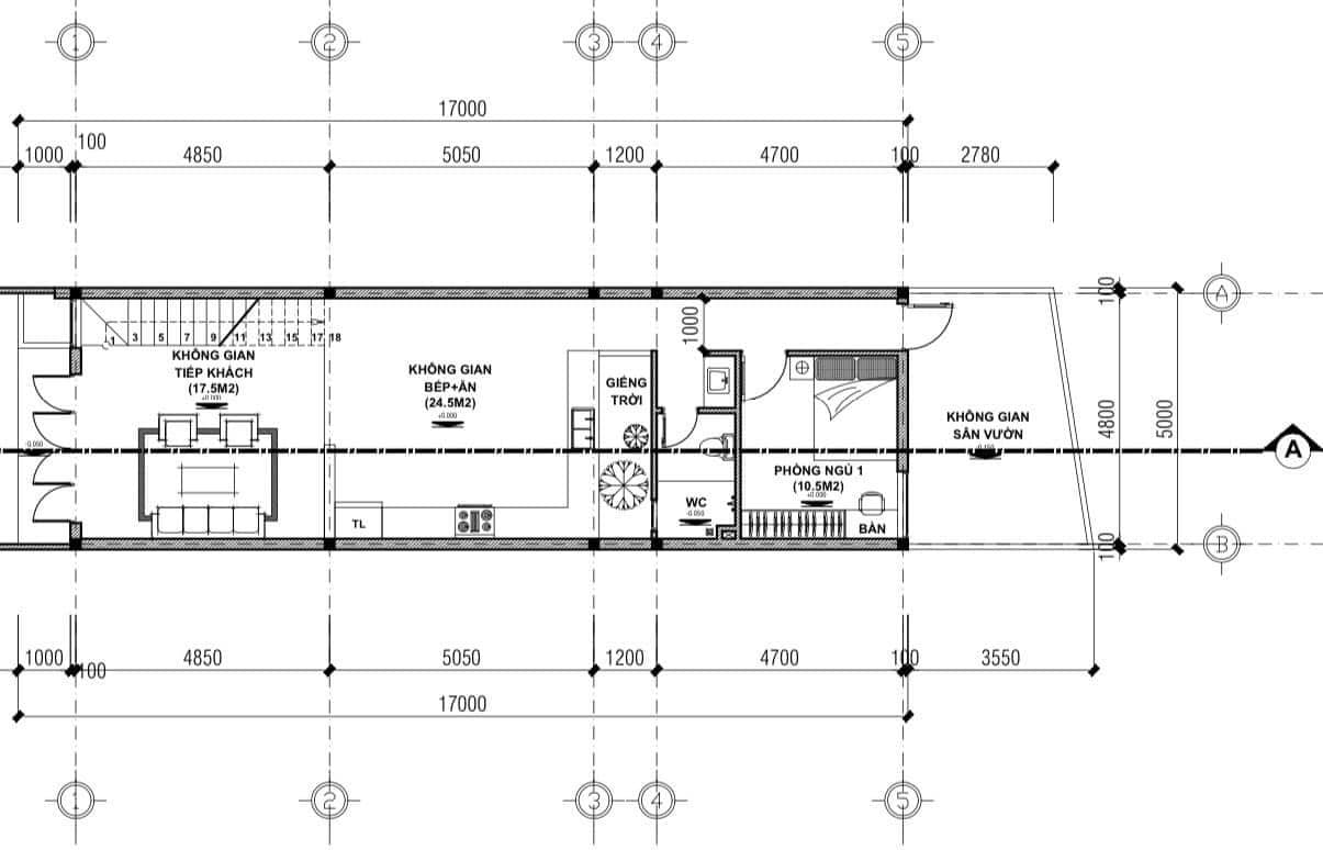
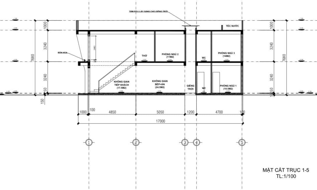
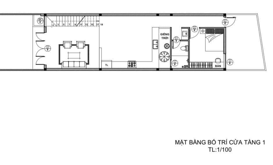
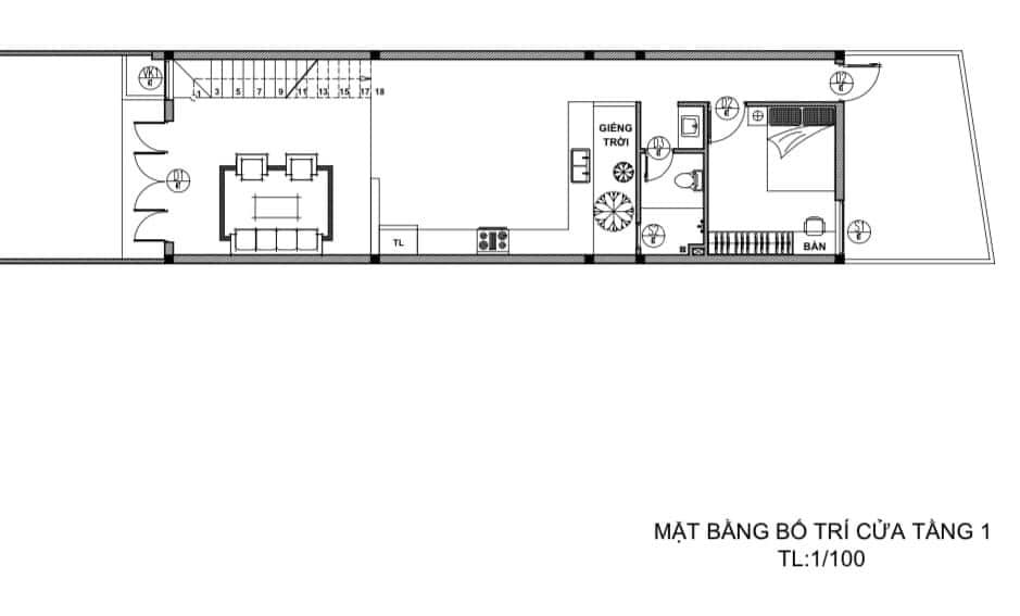
Bố trí công năng tối ưu trong nhà gác lửng mái bằng 5x16m
Nhà gác lửng mái bằng 5x16m có thiết kế khoa học, đảm bảo không gian tiện nghi và đầy đủ công năng sử dụng.
Với thiết kế hợp lý, nhà gác lửng mái bằng 5x16m đáp ứng nhu cầu sinh hoạt, tận dụng tối đa diện tích mà vẫn đảm bảo sự thông thoáng và tiện nghi.
Giải pháp tiết kiệm chi phí khi xây nhà gác lửng 5x16m
Xây dựng nhà gác lửng mái bằng 5x16m với chi phí tối ưu cần có kế hoạch hợp lý. Dưới đây là một số giải pháp giúp tiết kiệm hiệu quả:
Lựa chọn thiết kế đơn giản, tối ưu không gian
- Hạn chế các chi tiết trang trí phức tạp, tập trung vào thiết kế tối giản và thực dụng.
- Tận dụng gác lửng để tăng diện tích sử dụng mà không cần xây thêm tầng.
Sử dụng vật liệu xây dựng tiết kiệm chi phí
- Chọn vật liệu nhẹ, bền như tấm xi măng, gạch không nung để giảm chi phí thi công.
- Dùng mái bằng bê tông thay vì mái ngói, giúp tiết kiệm vật liệu và bảo trì lâu dài.
Tận dụng nội thất thông minh
- Sử dụng nội thất đa năng như giường gấp, bàn gập để tối ưu diện tích.
- Chọn nội thất có sẵn thay vì đặt thiết kế riêng để giảm chi phí.
Tận dụng ánh sáng và thông gió tự nhiên
- Thiết kế cửa kính lớn, giếng trời để giảm chi phí điện chiếu sáng.
- Bố trí hợp lý giúp nhà thoáng mát, tiết kiệm điện năng làm mát.
Lập kế hoạch chi tiết trước khi xây dựng
- Dự trù kinh phí cụ thể để tránh phát sinh chi phí ngoài dự kiến.
- Chọn nhà thầu uy tín để đảm bảo chất lượng và tiết kiệm thời gian thi công.
Nhà gác lửng mái bằng 5x16m là lựa chọn thông minh cho nhà phố nhỏ, vừa tối ưu không gian vừa tiết kiệm chi phí. Thiết kế này đảm bảo công năng đầy đủ, mang lại sự tiện nghi và thoáng đãng cho gia đình. Nếu bạn đang tìm kiếm một giải pháp xây dựng hiện đại, hợp lý thì nhà gác lửng mái bằng 5x16m là gợi ý đáng cân nhắc.






